Узаконені такі зміни: – демонтаж частини ненесучих цегляних перегородок – збільшення площі житлової кімнати за рахунок площі комори – зашивання прорізу між коридором і кухнею – організація вбудованої шафи за рахунок площі коридору – організація приміщення гардеробу за рахунок площі коридору та житлової кімнати
Узаконені такі зміни: – демонтаж частини ненесучих цегляних перегородок – збільшення площі житлової кімнати за рахунок площі комори
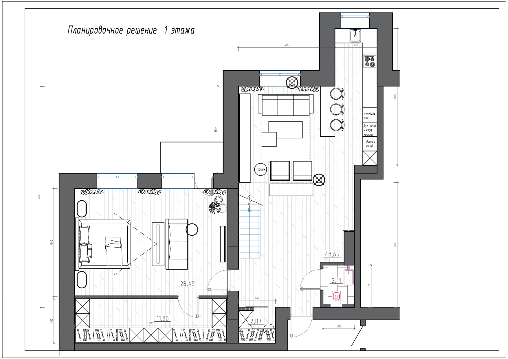
Узаконені такі зміни: – демонтаж частини ненесучих цегляних перегородок – збільшення площі житлової кімнати за рахунок площі комори
S = 43.6 м2
15 000 грн.
3 місяці

Коротке речення яке може бути приблизно в одну строку,
а може бути і у декілька строк.

Коротке речення яке може бути приблизно в одну строку,
а може бути і у декілька строк.

Коротке речення яке може бути приблизно в одну строку,
а може бути і у декілька строк.

Коротке речення яке може бути приблизно в одну строку,
а може бути і у декілька строк.
З нами узаконення перепланування квартири буде швидким, законним і без зайвого стресу.
Власник комерційного приміщення
02.11.2024
м. Вишгород
“Звернувся до ProPereplan для реконструкції приміщення під офіс. Приємно здивувала злагоджена робота всіх спеціалістів: Дизайнери створили стильний фасад, який тепер привертає увагу клієнтів, а архітектори, інженери та юристи виконали величезний обсяг документації у дуже короткі строки. Робота була організована бездоганно, і я отримав якісний результат, який повністю відповідає моїм очікуванням. Щиро рекомендую!”
Власник комерційного приміщення
02.11.2024
м. Вишгород
“Звернувся до ProPereplan для реконструкції приміщення під офіс. Приємно здивувала злагоджена робота всіх спеціалістів: Дизайнери створили стильний фасад, який тепер привертає увагу клієнтів, а архітектори, інженери та юристи виконали величезний обсяг документації у дуже короткі строки. Робота була організована бездоганно, і я отримав якісний результат, який повністю відповідає моїм очікуванням. Щиро рекомендую!”
Власник комерційного приміщення
02.11.2024
м. Вишгород
“Звернувся до ProPereplan для реконструкції приміщення під офіс. Приємно здивувала злагоджена робота всіх спеціалістів: Дизайнери створили стильний фасад, який тепер привертає увагу клієнтів, а архітектори, інженери та юристи виконали величезний обсяг документації у дуже короткі строки. Робота була організована бездоганно, і я отримав якісний результат, який повністю відповідає моїм очікуванням. Щиро рекомендую!”
Вул. Андрія Верхогляда, 18, Київ
Ми спеціалізуємося виключно на проєктуванні та погодженні перепланувань
Ми спеціалізуємося виключно на проєктуванні та погодженні перепланувань
Вул. Андрія Верхогляда, 18, Київ
Ми спеціалізуємося виключно на проєктуванні та погодженні перепланувань
Ми спеціалізуємося виключно на проєктуванні та погодженні перепланувань
Вул. Андрія Верхогляда, 18, Київ
Ми спеціалізуємося виключно на проєктуванні та погодженні перепланувань
Ми спеціалізуємося виключно на проєктуванні та погодженні перепланувань
Вул. Андрія Верхогляда, 18, Київ
Ми спеціалізуємося виключно на проєктуванні та погодженні перепланувань
Ми спеціалізуємося виключно на проєктуванні та погодженні перепланувань
Чекаємо на ваші пропозиції стосовно співпраці з нами.
Чекаємо на ваші пропозиції стосовно співпраці з нами.
ППП це Проєктне Підприємство Перепланувань – №1 у Києві.
Ми створюємо дизайн, проєктуємо та погоджуємо перепланування
квартир в Києві з 2013 року.
ППП це Проєктне Підприємство Перепланувань – №1 у Києві.
Ми створюємо дизайн, проєктуємо та погоджуємо перепланування
квартир в Києві з 2013 року.
ППП це Проєктне Підприємство Перепланувань – №1 у Києві.
Ми створюємо дизайн, проєктуємо та погоджуємо перепланування
квартир в Києві з 2013 року.
ППП це Проєктне Підприємство Перепланувань – №1 у Києві.
Ми створюємо дизайн, проєктуємо та погоджуємо перепланування
квартир в Києві з 2013 року.
ППП це Проєктне Підприємство Перепланувань – №1 у Києві.
Ми створюємо дизайн, проєктуємо та погоджуємо перепланування
квартир в Києві з 2013 року.
ППП це Проєктне Підприємство Перепланувань – №1 у Києві.
Ми створюємо дизайн, проєктуємо та погоджуємо перепланування
квартир в Києві з 2013 року.
ППП це Проєктне Підприємство Перепланувань – №1 у Києві.
Ми створюємо дизайн, проєктуємо та погоджуємо перепланування
квартир в Києві з 2013 року.
ППП це Проєктне Підприємство Перепланувань – №1 у Києві.
Ми створюємо дизайн, проєктуємо та погоджуємо перепланування
квартир в Києві з 2013 року.
ППП це Проєктне Підприємство Перепланувань – №1 у Києві.
Ми створюємо дизайн, проєктуємо та погоджуємо перепланування
квартир в Києві з 2013 року.
Ждем ваших предложений по сотрудничеству с нами.
Ждем ваших предложений по сотрудничеству с нами.
Ул. Андрея Верхогляда, 18, Киев
Мы специализируемся исключительно на проектировании и согласовании перепланировок
Мы специализируемся исключительно на проектировании и согласовании перепланировок
Ул. Андрея Верхогляда, 18, Киев
Мы специализируемся исключительно на проектировании и согласовании перепланировок
Мы специализируемся исключительно на проектировании и согласовании перепланировок
Ул. Андрея Верхогляда, 18, Киев
Мы специализируемся исключительно на проектировании и согласовании перепланировок
Мы специализируемся исключительно на проектировании и согласовании перепланировок
Ул. Андрея Верхогляда, 18, Киев
Мы специализируемся исключительно на проектировании и согласовании перепланировок
Мы специализируемся исключительно на проектировании и согласовании перепланировок
Владелец коммерческого помещения
02.11.2024
г. Вышгород
“Обратился в ProPereplan для реконструкции помещения под офис. Приятно удивила слаженная работа всех специалистов: Дизайнеры создали стильный фасад, который теперь привлекает внимание клиентов, а архитекторы, инженеры и юристы выполнили огромный объем документации в очень короткие сроки. Работа была организована безупречно, и я получил качественный результат, который полностью соответствует моим ожиданиям. Искренне рекомендую!”
Владелец коммерческого помещения
02.11.2024
г. Вышгород
“Обратился в ProPereplan для реконструкции помещения под офис. Приятно удивила слаженная работа всех специалистов: Дизайнеры создали стильный фасад, который теперь привлекает внимание клиентов, а архитекторы, инженеры и юристы выполнили огромный объем документации в очень короткие сроки. Работа была организована безупречно, и я получил качественный результат, который полностью соответствует моим ожиданиям. Искренне рекомендую!”
Владелец коммерческого помещения
02.11.2024
г. Вышгород
“Обратился в ProPereplan для реконструкции помещения под офис. Приятно удивила слаженная работа всех специалистов: Дизайнеры создали стильный фасад, который теперь привлекает внимание клиентов, а архитекторы, инженеры и юристы выполнили огромный объем документации в очень короткие сроки. Работа была организована безупречно, и я получил качественный результат, который полностью соответствует моим ожиданиям. Искренне рекомендую!”
ППП это Проектное Предприятие Перепланировок – №1 в Киеве.
Мы создаем дизайн, проектируем и согласовываем перепланировки
квартир в Киеве с 2013 года.
ППП это Проектное Предприятие Перепланировок – №1 в Киеве.
Мы создаем дизайн, проектируем и согласовываем перепланировки
квартир в Киеве с 2013 года.
ППП это Проектное Предприятие Перепланировок – №1 в Киеве.
Мы создаем дизайн, проектируем и согласовываем перепланировки
квартир в Киеве с 2013 года.
ППП это Проектное Предприятие Перепланировок – №1 в Киеве.
Мы создаем дизайн, проектируем и согласовываем перепланировки
квартир в Киеве с 2013 года.
ППП это Проектное Предприятие Перепланировок – №1 в Киеве.
Мы создаем дизайн, проектируем и согласовываем перепланировки
квартир в Киеве с 2013 года.
ППП это Проектное Предприятие Перепланировок – №1 в Киеве.
Мы создаем дизайн, проектируем и согласовываем перепланировки
квартир в Киеве с 2013 года.
ППП это Проектное Предприятие Перепланировок – №1 в Киеве.
Мы создаем дизайн, проектируем и согласовываем перепланировки
квартир в Киеве с 2013 года.
ППП это Проектное Предприятие Перепланировок – №1 в Киеве.
Мы создаем дизайн, проектируем и согласовываем перепланировки
квартир в Киеве с 2013 года.
ППП это Проектное Предприятие Перепланировок – №1 в Киеве.
Мы создаем дизайн, проектируем и согласовываем перепланировки
квартир в Киеве с 2013 года.